Prodej bytu o dispozici 4+1/L, DV, 84m² v obci Ústí nad Labem
Prodej bytu o dispozici 4+1/L, DV, 84m² v obci Ústí nad Labem
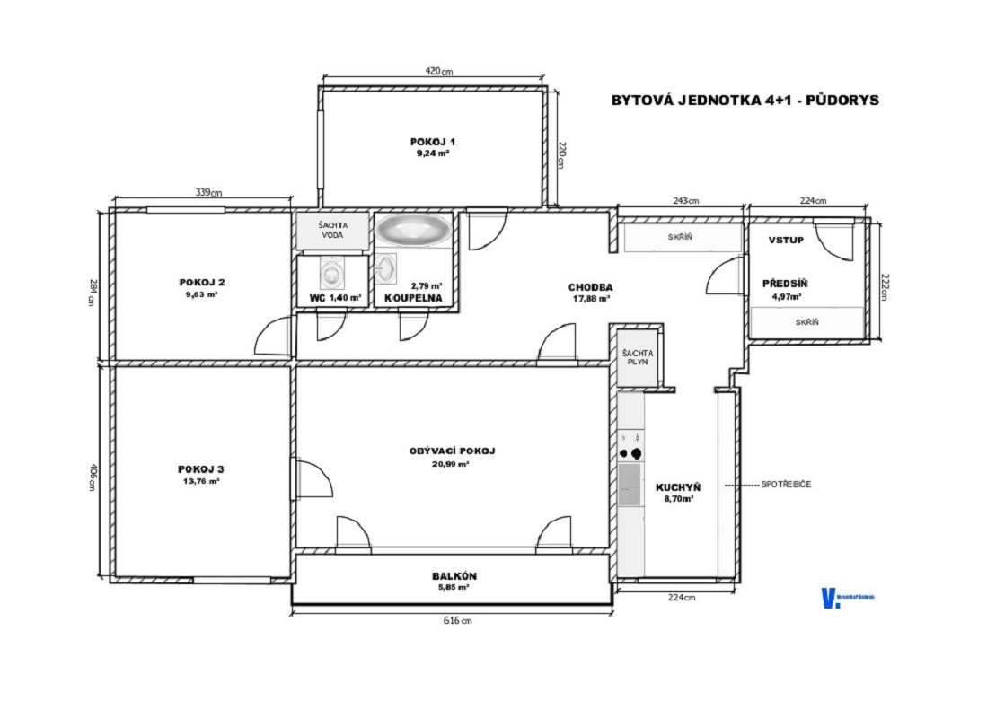
Nabízíme ke koupi byt v družstevním vlastnictví o dispozici 4+1/L a
velikosti 84m² nacházející se v 8 NP panelového domu v obci Ústí nad
Labem – část sídliště Pod Vyhlídkou.
Tento celkově dobře udržovaný byt prošel rekonstrukcí původního
umakartového jádra na zděné, kdy koupelna a toaleta jsou od sebe oddělené
a je zde tím zajištěno dostatečné soukromí. Obklady modré barvy působí
velmi příjemně a prostor koupelny je dostatečný i pro umístění svislé
sady pračky a sušičky. Středem bytu vede prostorná chodba s vestavěnou
skříní. Stejně prostorná skříň se nachází i v zádveří menší
vstupní chodby. Je zde tedy dostatek úložného prostoru pro oblečení
i další věci všech členů rodiny. K dispozici tři obytné místnosti pro
pokoje a ložnici a hlavní obývací místnost sousedící s kuchyní. Záměr
původních majitelů bylo i propojení těchto dvou místností a vytvoření
většího otevřeného prostoru. Součástí prodeje jsou i vestavěné
spotřebiče v kuchyni. Byt má k dispozici i prostornou lodžii s vlastním
zasklením. Je tedy neustále v suchu a lze si tady užít chvíle klidu
u kávy, případně výhledu za každého počasí. Z oken pokojů je
nádherný výhled na celé město i okolní zeleň. Pro lepší představu
rozložení místností využijte naši fotogalerii a plánek bytu.
Podlahy v bytě plovoucí a lino. Topení řešeno radiátory, v koupelně a
na toaletě podlahové. Do bytu zaveden plyn. Okna plastová. K bytu je
k dispozici sklepní koje.
Dům prošel rekonstrukcí fasády a zateplení, střechy. Vstup do domu
zajištěn přes čip. Přívod internetu přes síť T-mobile – optika.
Celkově dům i okolí působí velmi čistě a udržovaně. Parkování
možné u domu a přilehlých parkovacích stání.
V současné době nelze byt převést do osobního vlastnictví z důvodu
zakládání SVJ v domě s realizací do cca 2 let. Žádost o převod
podána. Anuita splacena, poplatek za převod práv v ceně nemovitosti.
Samotné město Ústí nad Labem je krajským městem Ústeckého kraje. Je zde
veškerá občanská vybavenost a obchodní síť. Školky, školy, střední
školy i VŠ v místě. Pravidelná autobusová doprava (zastávka do 3 minut
chůze), dálnice D8 směr Praha – Německo se nachází do 7 minut jízdy
autem od domu.
Tento dům doporučuji pro svůj skvělý stav, zděné jádro a jako místo
v klidné části města s dobrou dostupností.
Pro případ zájmu o prohlídku tohoto domu mě prosím kontaktujte a rád
vás zde provedu.
Ústí nad Labem-Neštěmice
Obvodová



























