Prodej rodinného domu 204 m2, pozemek 690 m2
Prodej rodinného domu 204 m2, pozemek 690 m2
Exkluzivně nabízím k prodeji prostorný rodinný dům o dispozici
4+1 na pozemku o celkové výměře 690 m² v klidné obci Dolní
Habartice.
Nemovitost zaujme velmi dobrým technickým stavem, nízkými provozními
náklady a příjemným zázemím pro rodinné bydlení bez nutnosti dalších
investic.
Na pozemku se nachází pergola s venkovním posezením, grilem a udírnou,
která vytváří ideální prostor pro relaxaci i společenská setkání.
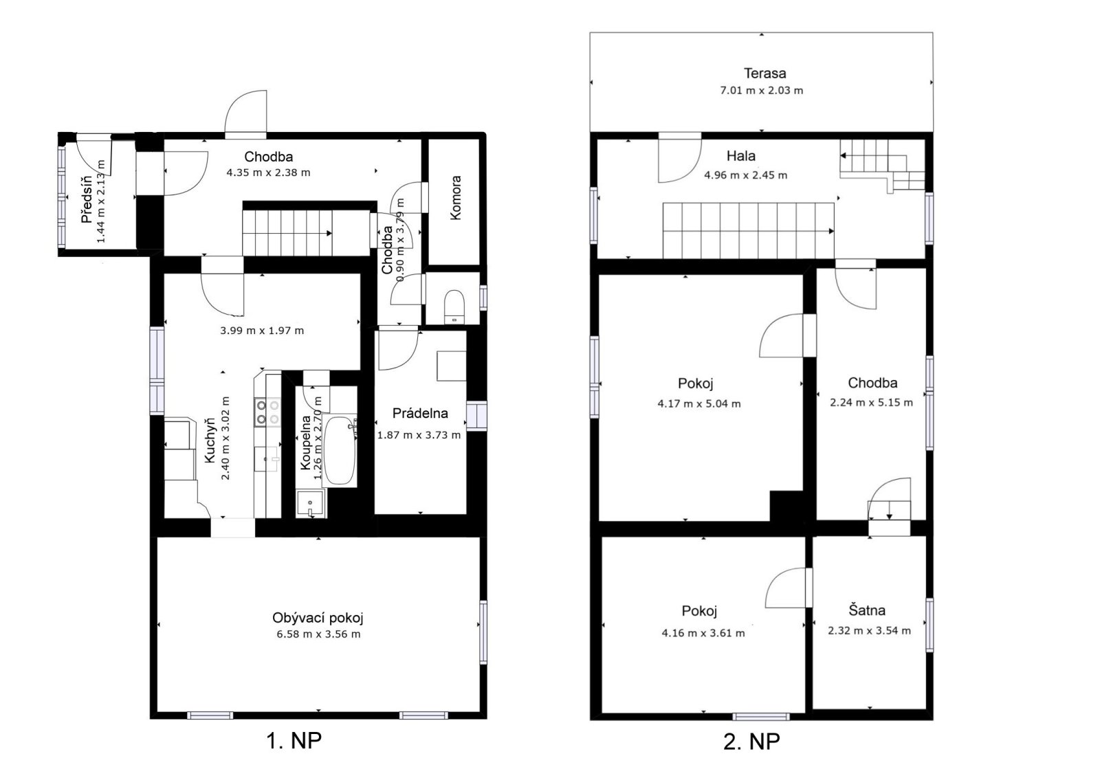
Dispoziční řešení domu:
Přízemí nabízí praktické zádveří, chodbu se vstupem do garáže,
samostatnou kuchyni, světlý obývací pokoj s jídelnou, koupelnu, oddělené
WC, spíž, technickou místnost a prádelnu s potenciálem vybudování druhé
koupelny.
V patře jsou tři samostatné pokoje propojené chodbou. Dřevěné
schodiště pokračuje na půdu, která poskytuje další možnosti
rozšíření obytné plochy.
Velkým benefitem je prostorná garáž s připraveným vstupem z patra pro
budoucí realizaci střešní terasy.
Technický stav a vybavení:
Dům je zateplený včetně střechy, osazen plastovými okny s dvojskly a
elektroinstalací v mědi. Odpad je řešen plastovým tříkomorovým
septikem.
O komfortní vytápění se stará kondenzační plynový kotel Prestige 18
(cca 7 let) doplněný krbovými kamny s výměníkem v obývacím pokoji.
Měsíční náklady na bydlení činí přibližně 6.000 Kč.
V posledních 2 letech proběhla nákladná a rozsáhlá rekonstrukce:
nový hlavní přívod elektro a jističe
komín s nerezovou vložkou
zateplení střechy (16 cm foukaná izolace)
nové interiérové dveře (masivní, prosklené i plné)
nové kovové vchodové dveře
nové vinylové podlahy (obývací pokoj, kuchyně)
kompletně nová koupelna
kompletně nová kuchyně včetně spotřebičů
nová vjezdová vrata do garáže včetně střechy
sítě proti hmyzu v oknech
kompletní oplocení pozemku, a mnoho dalšího
Lokalita:
Dolní Habartice se rozkládají v malebném prostředí Českého
středohoří, přibližně 9 km od Děčína. Obec nabízí základní
občanskou vybavenost — potraviny, mateřskou a základní školu, sportovní
vyžití i restauraci. Dopravní dostupnost je zajištěna autobusovými
i vlakovými spoji.
Nemovitost představuje ideální volbu pro klienty hledající klidné rodinné
bydlení v dobrém technickém stavu s minimálními budoucími
investicemi.
Veškeré informace týkající se domu a rozsahu rekonstrukce jsou
k nahlédnutí u makléřky. PENB se zpracovává.






















